208
208


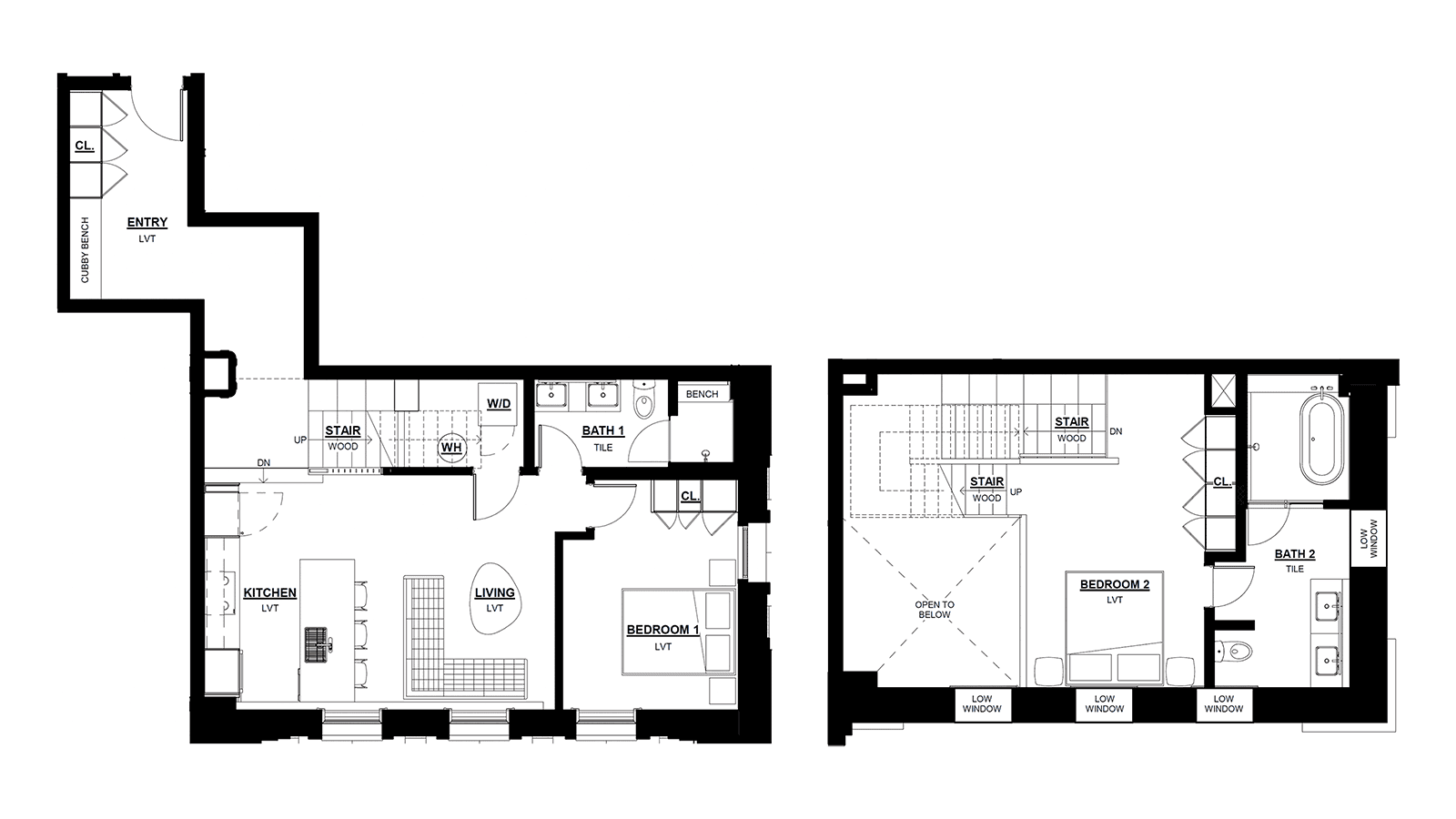
Tri-Level Loft
Each residence is designed as its own expression of luxury. Open layouts, generous ceiling heights, and artful material choices form the foundation for a home that feels both sophisticated and deeply comfortable.
Square feet
1,466
Beds
2
Baths
2
Rent
$
7,330
/mo
Tri-Level Loft
Each residence is designed as its own expression of luxury. Open layouts, generous ceiling heights, and artful material choices form the foundation for a home that feels both sophisticated and deeply comfortable.
Square feet
1,466
Beds
2
Baths
2
Rent
$
7,330
/mo






